Volver
SOLICITAR VISITA
REFERENCIA: 893/9282 - Dúplex en venta en Colón / Vigo (Pontevedra).
- Precio de Venta: 1.100.000 €
Se recuperará el esplendor de un edificio proyectado por Jenaro de la Fuente en 1912 y ampliado por Antonio Cominges en 1932, dotándolo de seis viviendas y un centro de negocios en su planta baja y entreplanta. De este modo, la obra de dos de los arquitectos más destacados de comienzos del siglo pasado en la ciudad –equiparables únicamente a Antonio Palacios o Michel Pacewicz– volverá a presentar un aspecto acorde con la categoría de sus autores y su ubicación.
El proyecto de rehabilitación ha sido redactado por Jorge Herrero y José Melero, del estudio OPV Arquitectura, oficina viguesa que ha participado en otras intervenciones de gran relevancia en el centro de la ciudad, como la rehabilitación del Edificio Romero, antigua sede de Cortefiel en el corazón de la calle Príncipe.
En esta ocasión se propone una rehabilitación integral, en la que se conservarán todos los elementos de valor: fachadas, escaleras, puertas interiores y estructuras de madera originales. Asimismo, se mantendrán las actuales ventanas y balcones, incorporando además un pequeño ático que completará la volumetría del inmueble.
La modernización incluirá la transformación de los accesos para garantizar la máxima accesibilidad. Para ello, se ejecutará una nueva arcada en el portal que sustituirá el diseño previo del bajo comercial, anteriormente ocupado por la pastelería El Molino.
Una memoria de calidades de gran nivel, con especial atención a los trabajos de carpintería y ebanistería, que se realizarán con el objetivo de preservar y poner en valor los detalles originales del edificio, evitando que se pierdan.
El proyecto de rehabilitación ha sido redactado por Jorge Herrero y José Melero, del estudio OPV Arquitectura, oficina viguesa que ha participado en otras intervenciones de gran relevancia en el centro de la ciudad, como la rehabilitación del Edificio Romero, antigua sede de Cortefiel en el corazón de la calle Príncipe.
En esta ocasión se propone una rehabilitación integral, en la que se conservarán todos los elementos de valor: fachadas, escaleras, puertas interiores y estructuras de madera originales. Asimismo, se mantendrán las actuales ventanas y balcones, incorporando además un pequeño ático que completará la volumetría del inmueble.
La modernización incluirá la transformación de los accesos para garantizar la máxima accesibilidad. Para ello, se ejecutará una nueva arcada en el portal que sustituirá el diseño previo del bajo comercial, anteriormente ocupado por la pastelería El Molino.
Una memoria de calidades de gran nivel, con especial atención a los trabajos de carpintería y ebanistería, que se realizarán con el objetivo de preservar y poner en valor los detalles originales del edificio, evitando que se pierdan.
- Calificación consumo de energía: En trámite.
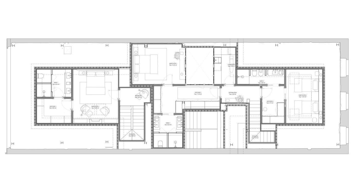
- Piso: planta 4.
- Plantas edificio: 5.
- Año de construcción: 1.920.
- Área total construida: 132 m2.
- Habitaciones: 3.
- Baños: 2.
- Armarios empotrados: 3.
- Ascensores: 1.
- Estado de conservación: reforma a estrenar.
- Tipo calefacción: individual.
- Agua caliente: individual.
- Interior/exterior: exterior.
- Amueblado: cocina amueblada.
- Equipamiento: balcón, puerta de seguridad.
- Puertas: madera barnizada.
- Ventanas: PVC, doble cristal, persiana plástico/pvc.
- Suelos: parquet, cerámica.
Datos de contacto
Localización
Propiedad en Rúa Colón
Hoja informativa. No incluidos gastos de Escrituración, Registro e Impuestos. El comprador sólo pagará honorarios si figura así expresamente en el apartado "descripción".
La oficina 893, Alcalde Martínez Garrido 3 Bj Ctro 2 (Vigo - Pontevedra) con nombre fiscal Mar Rodríguez Alonso y CIF: ES 36110908B
es responsable de los datos e información publicitados de este inmueble.
La oficina 893, Alcalde Martínez Garrido 3 Bj Ctro 2 (Vigo - Pontevedra) con nombre fiscal Mar Rodríguez Alonso y CIF: ES 36110908B
es responsable de los datos e información publicitados de este inmueble.






